Groningen

Welkom bij onze moderne woonwagenwoning "Groningen". Deze woning biedt een comfortabele en efficiënte indeling, ideaal voor gezinnen of stellen die op zoek zijn naar een unieke woonervaring. Hieronder vindt u een gedetailleerde beschrijving van de indeling en kenmerken van deze woonwagenwoning.

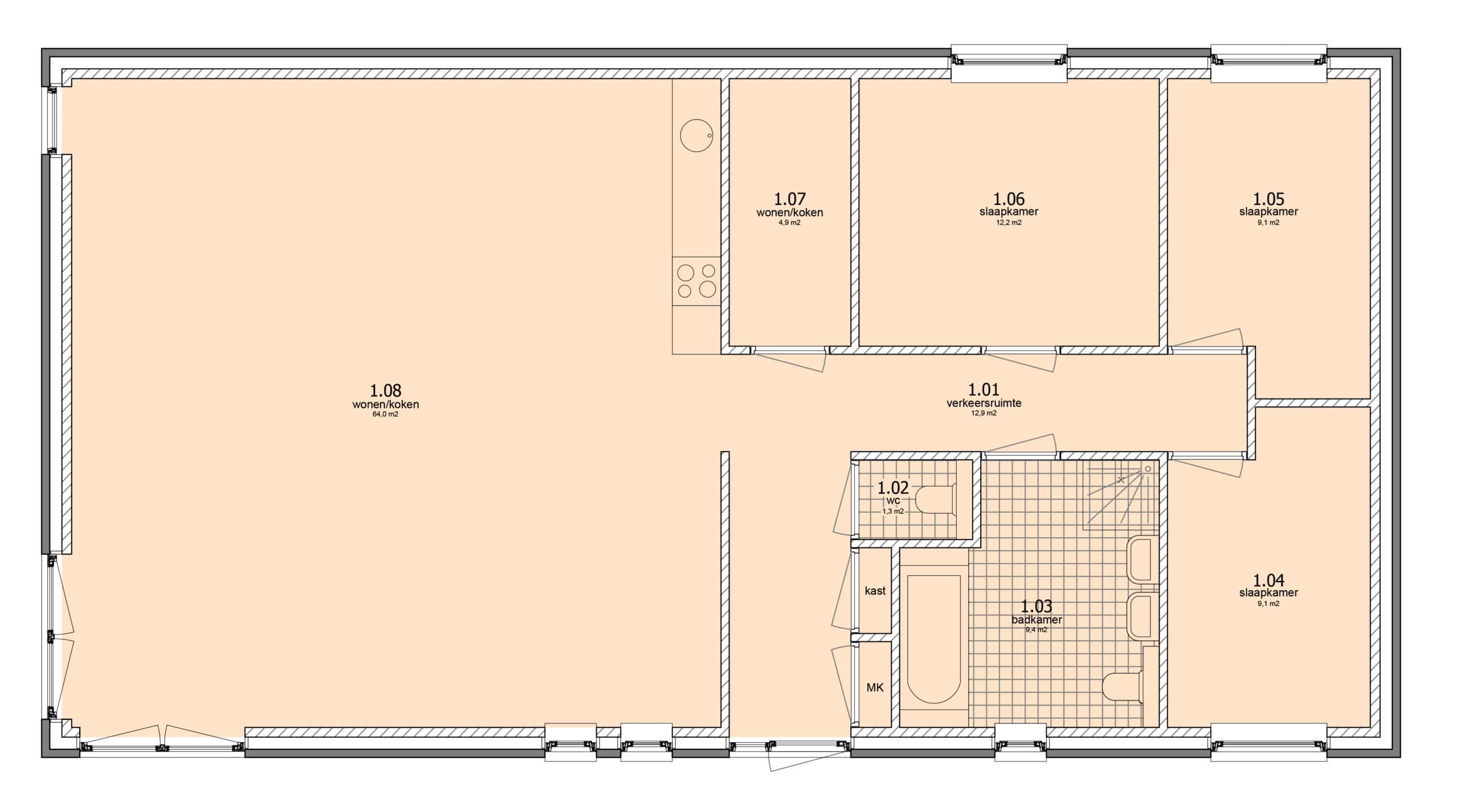
Afmetingen
Breedte: 7,00 meter.       Lengte: 15,00 meter

 

Indeling en kenmerken

Slaapkamer 1
13,9 m² - De grootste slaapkamer, ideaal als master bedroom met ruimte voor een groot bed en extra meubilair.

Slaapkamer 2
7,5 m² - Een comfortabele slaapkamer die uitstekend geschikt is als kinderkamer of gastenkamer.

Slaapkamer 3
7,5 m² - Een gezellige kamer die kan dienen als tweede kinderkamer, werkkamer of hobbyruimte.

Woonkamer
De ruime woonkamer van 50 m² vormt het hart van de woning. Hier is voldoende ruimte voor een gezellige zithoek en een eethoek, perfect om te ontspannen en te genieten van quality time met familie en vrienden.

Extra kast
Er is een extra kast aanwezig voor extra opbergruimte, zodat uw woning altijd netjes en georganiseerd blijft.

Badkamer
De badkamer van 7,6 m² is uitgerust met moderne voorzieningen. Hier kunt u heerlijk ontspannen en genieten van een verfrissende douche of een warm bad.

Aparte toilet
Naast de badkamer is er een aparte toiletruimte, wat zorgt voor extra gemak en privacy.

Meterkast
De woning is voorzien van een praktische meterkast, waar alle elektrische voorzieningen overzichtelijk zijn geplaatst.

Wasberging
Er is een handige wasberging aanwezig, ideaal voor het plaatsen van uw wasmachine, droger en extra opslag.

Entreehal
Bij binnenkomst wordt u verwelkomd in een ruime entreehal die toegang biedt tot de verschillende vertrekken van de woning.

Kies uw type dak

woonwagenwoning - Groningen - wolfskap

Wolfskap

woonwagenwoning - Groningen - zadeldak

Zadeldak

woonwagenwoning - Groningen - pyramidedak

Pyramidedak

Plattegrond

09

Woonwagenwoning "Groningen" combineert comfort, stijl en functionaliteit, en biedt de flexibiliteit om aan uw specifieke wensen te voldoen. Maak een afspraak om deze prachtige woning zelf te ervaren en ontdek waarom dit uw ideale nieuwe thuis kan zijn.

Waarom kiezen voor Woonwagenwoning Groningen?

Royale woonkamer van 50 m² voor een aangename leefomgeving.
Drie veelzijdige slaapkamers, perfect voor gezinnen of stellen.
Moderne badkamer van 7,6 m² met luxe voorzieningen en een aparte toiletruimte.
Keuze uit drie daktypes: piramidedak, zadeldak, of wolfskap, elk met een unieke uitstraling en voordelen.

Totale aanbod woonwagens

Kwaliteit

Bij H&H creëren wij een thuis door woonwagens en woonwagenwoningen te bouwen volgens de hoogste eisen van de Wet Kwaliteitsborging voor het Bouwen (WKB), het Bouwbesluit en de BENG-eisen (Bijna Energie Neutrale Gebouwen). Onze vakmensen werken met precisie en passie aan duurzame en comfortabele woonoplossingen. Kiezen voor H&H betekent kiezen voor betrouwbaarheid, kwaliteit en een plek waar u zich meteen thuis voelt.

Kwaliteit-Komo