Victoria
Welkom bij Chalet Victoria, een luxueus en modern chalet met een afmeting van 4 x 12,5 meter.
Dit chalet biedt de perfecte combinatie van stijl en functionaliteit.
Ruimte en comfort
Chalet Victoria is ontworpen met oog voor detail en biedt alle comfort die u nodig heeft voor een ontspannen verblijf.
De royale woonruimte is smaakvol ingericht en voorzien van moderne voorzieningen.
Indeling en voorzieningen
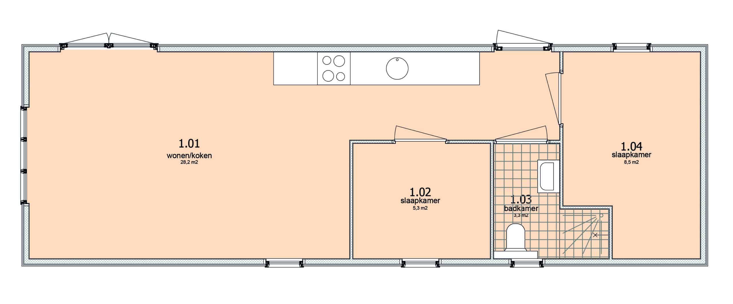
Woonkamer
Een gezellige woonkamer met openslaande tuindeuren die zorgen voor een overvloed aan natuurlijk licht en directe toegang tot het buitenleven.
Slaapkamers
Twee ruime slaapkamers.
Badkamer
Een moderne badkamer met een douche, toilet en wastafel, ingericht voor uw comfort.
Keuken
Een volledig uitgeruste keuken met een koelkast, fornuis, magnetron en vaatwasser, waardoor het bereiden van uw favoriete maaltijden een plezier is.
Plattegrond
Hoogwaardige afwerking
Binnen
De wanden en het plafond zijn afgewerkt met Agnes One-Step panelen voor een strakke en moderne uitstraling, terwijl de vloer is bekleed met duurzame en stijlvolle click-pvc.
Buiten
Het chalet is afgewerkt met luxe kunststof planken die zorgen voor een duurzame en moderne look. De kunststof draaikiepramen en stalen dakpanplaten dragen bij aan de duurzaamheid en esthetiek van het chalet. Bovendien is het chalet voorzien van een naadloze goot, wat zorgt voor een perfecte afwatering zonder zichtbare naden
Chalet Victoria biedt een perfecte combinatie van ruimte, comfort en functionaliteit.
Maak een afspraak om deze prachtige chalet zelf te ervaren en ontdek waarom dit uw ideale tweede thuis kan zijn.
Waarom kiezen voor Chalet Victoria?
Ontdek de unieke kenmerken die Chalet Victoria tot uw ideale tweede thuis maken:
